Irwin Lake Road, Hilden, (MLS® 202529707) REMAX NOVA
Google Play iOS Google Play iOS

Irwin Lake Road, Hilden

2 1 1000 sqft
$299,900 For Sale

Description

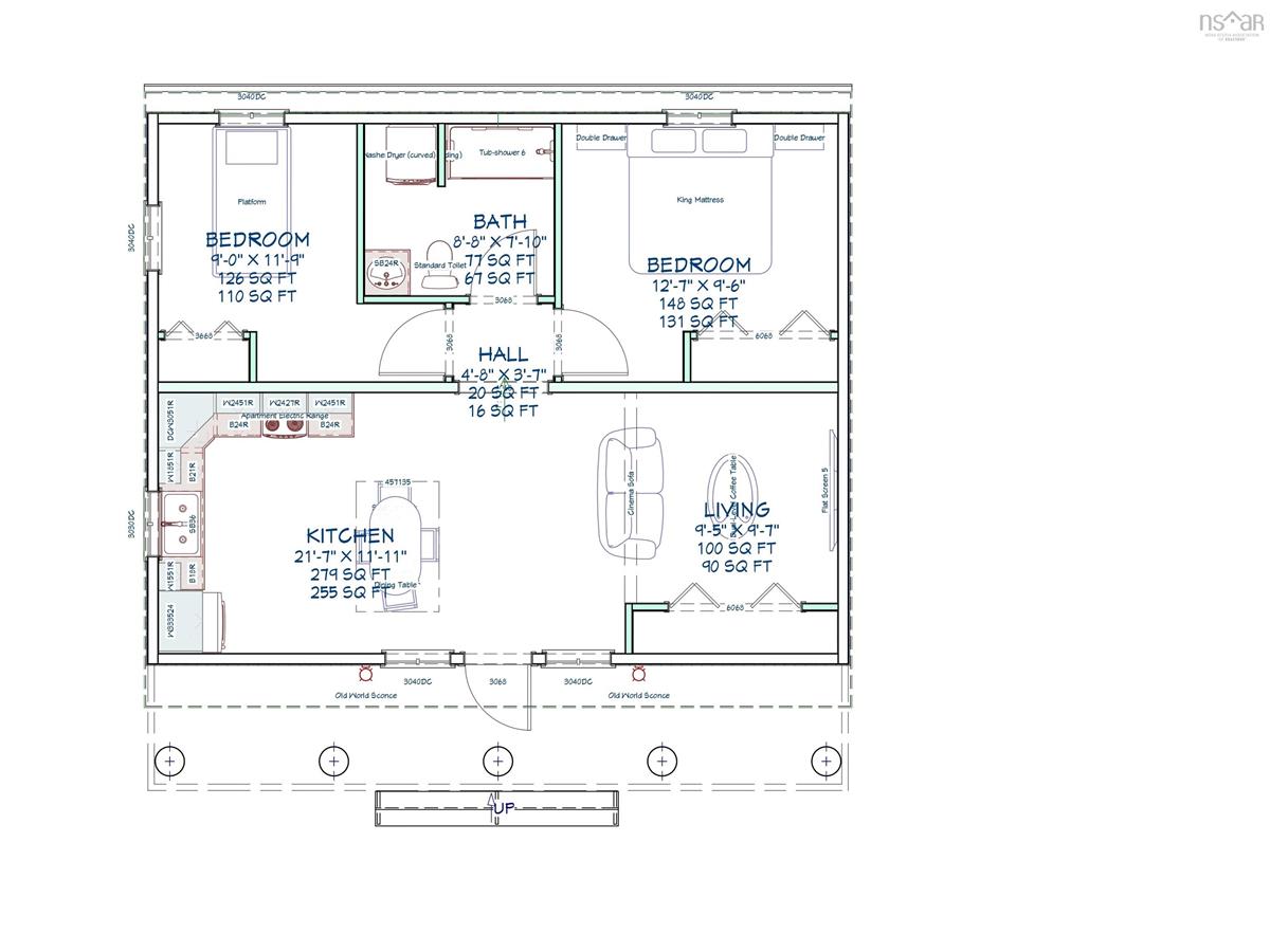
Introducing a small but mighty 1000 sq ft plan featuring 2 bedrooms and 1 well-appointed bathroom. This versatile layout is perfect for first homebuyers or those looking to downsize in retirement. Enjoy the charm and functionality of a space designed for comfort, no matter your stage in life. Embrace the possibilities this has to offer! This innovative property features all-metal siding and roofing for durability and style. Enjoy the comfort of in-floor heating combined with an efficient heat pump, ensuring a cozy atmosphere year-round Experience modern living with high-quality materials and energy-efficient solutions. Explore perfect blend of functionality and aesthetics in your next home! Discover the beauty of minimalist living in this charming 2-bedroom, 1-bath home. Enjoy the convenience of an eat-in kitchen that flows seamlessly into an open concept living room, perfect for relaxation and entertaining. Enjoy simplicity and comfort in a space designed for modern living. Discover the beauty of minimalist living in this charming 2-bedroom, 1-bath home. Enjoy the convenience of an eat-in kitchen that flows seamlessly into an open concept living room, perfect for relaxation and entertaining. Enjoy simplicity and comfort in a space designed for modern living. Even better, the purchase price qualifies for the Nova Scotia First-Time Home Buyers Down Payment Assistance Program for Colchester County, making this an excellent opportunity for eligible buyers to step into homeownership. Discover a space that truly feels like home. The property will be subdivided from a larger parcel.

Listing Details

Address
Irwin Lake Road, Hilden, B0N 1C0

Status
ACTIVE
Listing Price
$299,900
MLS®
202529707
Type
Single Family
Style
Detached
Age
0
Square Footage (MLA)
1,000  ft2
Total Fin SqFt (TLA)
1,000  ft2
PID
20205894
Bedrooms
2
Full Baths
1
Half Baths
0

Water
Drilled Well
Sewer
Municipal
Utilities
Cable,Electricity,High Speed Internet,Telephone

Building Specifications

Foundation Type
Poured Concrete
Roof
Steel
Exterior Finish
Steel
Flooring
Laminate

Looking for a Mortgage? Get Your Free Quote Started Today!

Garage & Parking

Garage
N
Details
---

Sales History

Demographic Data

Demographic data is based on the dissemination area that contains the listing parcel . Dissemination Areas are small areas composed of one or more neighbouring dissemination blocks. All of Canada is divided into dissemination areas. Data source: Environics Analytics via ArcGIS Online, 2021

Population Size

716

Median Age

47.8

Avg Household Size

2.3

Avg House Income

$89K

The number of people for each age range.

How the population of this area is expected to change.

The highest level of education obtained by people within this area.

The maritial status of the people in this area.

The average household income within this area.

The number of people that rent versus own.

When the buildings in the area were constructed.

The number of children at home for the given age ranges.

The occupations of the people living here.

Tax Assessment

Year Amount % Change
2024 $424,800 ---
2023 $277,900 ---
2022 $266,500 ---
2021 $252,600 ---
2020 $250,200 ---
2019 $246,800 ---
2018 $247,200 ---
2017 $243,600 ---
2016 $234,300 ---
2015 $229,700 ---
2014 $459,200 ---
2013 $228,000 ---
2012 $213,700 ---

Maps

Mortgage Inquiries

Last Updated On: 1/23/2026 4:17:53 PM (UTC)