135 Black Rock Road, Black Rock, (MLS® 202529188) REMAX NOVA
Google Play iOS Google Play iOS

135 Black Rock Road, Black Rock

3 3 2625 sqft
$599,000 For Sale

Description

For more information, please click the "More Information" button. Nothing about this home or garage is "cookie cutter". It's fully custom and built with high end materials. 1375 square feet upstairs and 1250 downstairs. 3 bedrooms (or four - theatre can be converted to bedroom) 2.5 baths Open concept kitchen / dining and living room area. Large decks front and back with composite decking. Heated with furnace, in floor heating and heat pump. 1 acre property 24 ft round above ground pool with salt water system installed in 2023 with composite deck. Newly renovated 4 piece main bath. 25 x 54 heated garage. 28 x 28 section completed in 2024 with 13 ft ceiling. Perfect for professional projects, vehicle storage, or hobbies.

Listing Details

Address
135 Black Rock Road, Black Rock, B1X 1C6

Status
ACTIVE
Listing Price
$599,000
MLS®
202529188
Type
Single Family
Style
Detached
Age
2024
Square Footage (MLA)
1,375  ft2
Total Fin SqFt (TLA)
2,625  ft2
PID
85036903
Bedrooms
3
Full Baths
2
Half Baths
1

Water
Drilled Well
Sewer
Septic
Utilities
Cable,Electricity,High Speed Internet,Telephone,Other

Building Specifications

Foundation Type
Poured Concrete
Roof
Asphalt Shingle
Exterior Finish
---
Flooring
Laminate,Slate

Looking for a Mortgage? Get Your Free Quote Started Today!

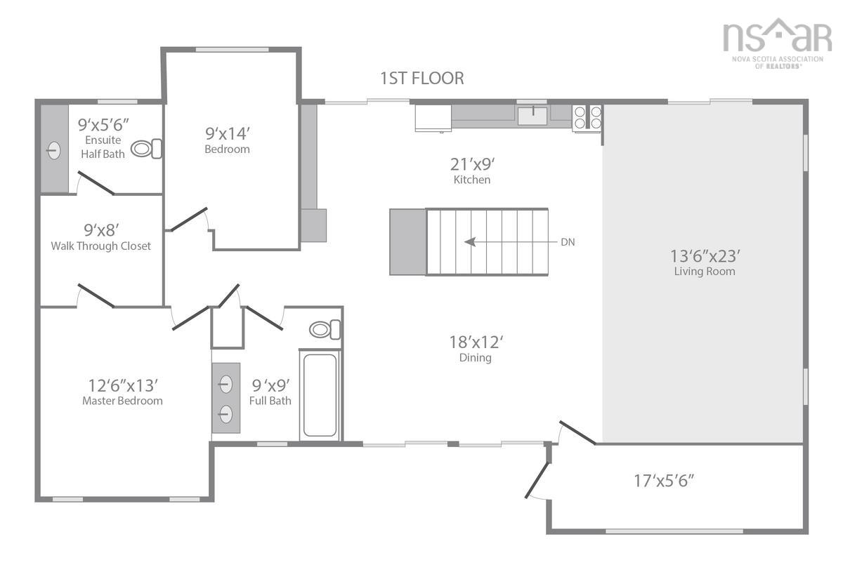
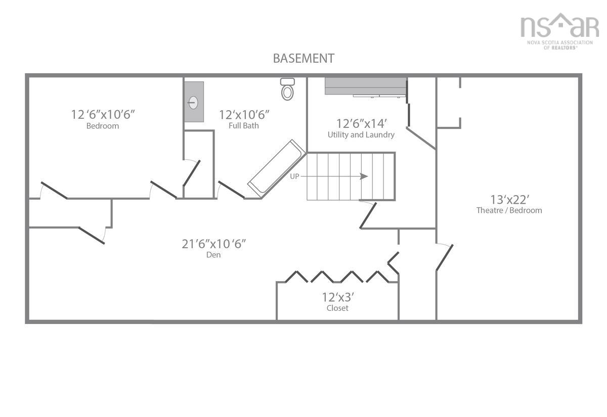
Rooms

LEVEL TYPE DIMENSIONS
Basement Rec Room 21.6x10.6
Basement Bedroom 12.6x10.6
Basement Bath 3 12x10.6
Basement Storage 12x3
Basement Laundry 12.6x14
Basement Media Room 12x22
Lower Level Workshop 22x26
Main Floor Porch 17x5.6
Main Floor Living Room 13.6x23
Main Floor Kitchen 21x9
Main Floor Dining Room 18x12
Main Floor Bath 1 9x9
Main Floor Primary Bedroom 12.6x13
Main Floor Storage 9x8
Main Floor Ensuite Bath 1 9x5.6
Main Floor Bedroom 9x14

Garage & Parking

Garage
Y
Details
1350 sq ft

Sales History

Demographic Data

Demographic data is based on the dissemination area that contains the listing parcel . Dissemination Areas are small areas composed of one or more neighbouring dissemination blocks. All of Canada is divided into dissemination areas. Data source: Environics Analytics via ArcGIS Online, 2021

Population Size

766

Median Age

49.9

Avg Household Size

2.3

Avg House Income

$113K

The number of people for each age range.

How the population of this area is expected to change.

The highest level of education obtained by people within this area.

The maritial status of the people in this area.

The average household income within this area.

The number of people that rent versus own.

When the buildings in the area were constructed.

The number of children at home for the given age ranges.

The occupations of the people living here.

Tax Assessment

Year Amount % Change
2024 $245,100 ---
2023 $211,500 ---
2022 $198,200 ---
2021 $194,500 ---
2020 $194,800 ---
2019 $192,600 ---
2018 $193,800 ---
2017 $196,700 ---
2016 $195,700 ---
2015 $194,000 ---
2014 $191,100 ---
2013 $189,600 ---
2012 $188,200 ---

Maps

Mortgage Inquiries

Last Updated On: 2/16/2026 3:53:53 PM (UTC)